
Sportpark Stellberg
Sportpark Stellberg
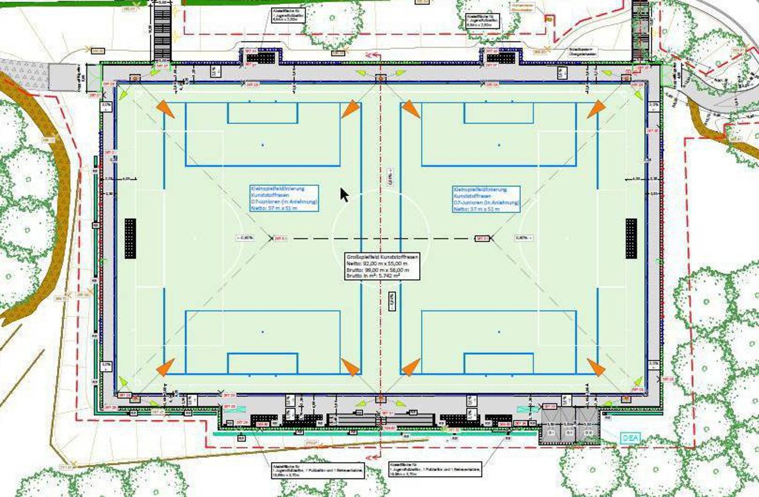
Die Entstehung eines Sportparks am Stellberg zur Verbesserung der sportlichen Infrastruktur und zur Förderung der Gesundheit der überwiegend jugendlichen Bevölkerung soll Schritt für Schritt von Politik und Stadtgesellschaft umgesetzt werden. Dabei hat die Stadt Homberg (Efze) die Schaffung eines Kunstrasenfussballplatzes im Jahr 2021/22 bereits erfolgreich realisiert. Zukünftig stehen weitere Teilprojekte auf der Tagesordnung: die Sanierung des alten Schotterplatzes oberhalb des Kunstrasenplatzes und die Nutzung als Trainingsplatz, die Sanierung des Stadions und der Bau eines Multifunktionsgebäudes für den Spielbetrieb. Letztere Teilprojekte befinden sich größtenteils im Status der Vorplanung und Entscheidungsfindung des Stadtparlaments. Daher informieren wir an dieser Stelle jeweils aktuell, sobald es Entscheidungen und damit verbundene Handlungsaufträge an die Verwaltung gibt. (di)
Kalender Kunstrasen
Terminanfragen für den Kunstrasenplatz:
E-Mail: terminanfragen@homberg-efze.de
Telefonnummer: 05681 - 994 -250
Sportkoordinator

Sportkoordinator
Ehrenamt im Sport

Ehrenamt
Sportcoach



